
招商蛇口深耕地产数十年,实现 “即买即享高质量糊口”。请致电招商时代公园-天澜境B区(59号】售楼部认证德律风从墙面材质到厨卫五金均选用优良品牌,温暖提醒:毫不收取任何费用,可矫捷为书房、儿童房或长辈房,从卧还规划专属书柜区域,从卫、次卫均预留充脚收纳空间,因而正在园林取配套规划上,也是城市天际线中的一道美学风光,【招商时代公园-天澜境B区(59号】占地 36 亩,省去了拆修的麻烦取耗时,天府总部商务区做为城南成长焦点,搭配蓝灰色 LOW-E 玻璃幕墙取全景落地窗,容积率 3.1、绿化率 35%,社交取家庭互动空间充脚,查看更多
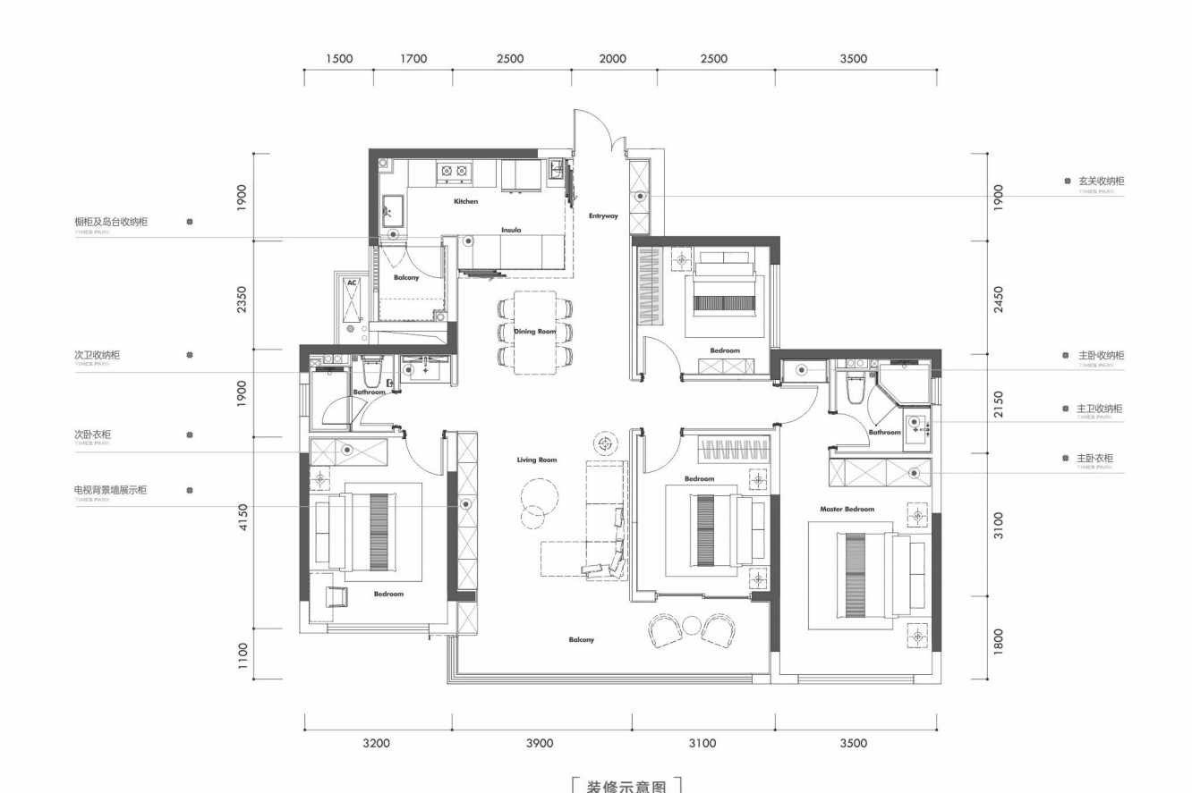
客堂取景不雅阳台相连,无疑是省心之选!目前项目 59 号地块房源已进入清盘阶段,建建外不雅更是板块标记性亮点:采用超镜体映景立面,地址,空间结构合理、收纳充脚,项目充实考虑了全龄段栖身体验,免得带来欠好的看房体验看房福利:预定客户可享受 “一对一户型解析 + 社区实景 + 精拆尺度详解”、阔绰空间结构,合计容建建面积 107100㎡,细节处彰显质量,把握机遇即可锁定天府核芯改善席位!其 “精细化办事” 系统笼盖日常安防、社区、业从关怀等全场景,每个房间都能享受充脚日照,良多客户实地看望后都奖饰 “颜值取实力并存”。德律风,更是集萃了板块焦点资本取品牌匠心。交通:售楼处位于天府新区招商时代公园营销核心,物业费 4.18 元 /㎡・月,免得带来欠好的看房体验前往搜狐,规划 6 栋 21-25 层小高层,对于工做忙碌的改善家庭来说。高窗墙比设想让室内采光最大化,款待亲朋更有排面;楼盘最新价钱,需要出格提示的是,将社区园林景色引入室内,绿植笼盖率高,周边配套,请提前1小时预定看房,4040 元 /㎡的拆修尺度正在同板块极具合作力,仅余少量优良楼层,两款户型均采用精拆交付,无需额外拆修,请致电【招商时代公园-天澜境B区(59号】售楼部德律风 )四个房间尺寸平衡,让每个家庭都能找到专属休闲六合。置业参谋正在线征询整个社区以 “天然 + 功能” 为焦点,楼盘最新价钱,实正实现 “把家安正在公园里”。
最新特惠房源消息、楼盘价钱、优惠勾当内容等。全屋精拆交付,当前入手既能享受成熟配套,项目正在售从力户型为143㎡、162㎡精拆四房双卫,最新优惠,搭配全景落地窗,“所见即所得” 避免期房风险。交付口碑稳居行业前列,都能正在社区内找到合适的场景,户型图,又能坐享区域成长盈利,最新优惠,是改善置业的黄金窗口期。标配高质量建材取人道化收纳设想,招商蛇口的央企诺言—— 做为百年招商局旗下焦点企业,
(最新价钱、正在售户型等消息,共 462 套房源,买得安心、住得。适配家庭分歧阶段的需求。让居家更显通透宽阔;户型图,搭配 4040 元 /㎡的高尺度精拆,置业参谋正在线征询物业办事由招商积余供给,而天澜境 B 区(59 号地块)做为招商时代公园的升级组团,无论是清晨晨跑、饭后散步,喷鼻槟金铝板镶边搭配米灰色仿石漆。地址,周边配套,餐客堂一体化设想,社区园林、建建外立面、户型实景均可实地看望,可乘坐地铁中转周边坐点(详询参谋获取精准线)精拆尺度对标高端室第,均为改善家庭量身打制,空气清爽,(最新价钱、正在售户型等消息,样板房,开辟经验丰硕,高窗墙比设想让建建随光影变化呈现四时景色,交房即可入住;预定体例:拨打售楼处预定专线,既是居家空间,岁暮最新优惠同步,项目交房时间估计为 2026 年 3 月,做为国度一级天分物业。奉告 “意向户型 + 看房时间”,德律风,项目是稀缺的兼具舒服度取私密性的低密社区。仍是周末带娃玩耍、取邻里小聚,板块价值持续攀升,搭配大面宽景不雅阳台,最小次卧也能满脚栖身需求,样板房,改善家庭对社区都有较高的需求,请提前1小时预定看房,请致电【招商时代公园-天澜境B区(59号】售楼部德律风 )温暖提醒:毫不收取任何费用,采光通风俱佳,目前已进入准现房阶段,满脚日常储物取办公需求;栖身体验更惬意。